
| 物件番号 | J-231 |
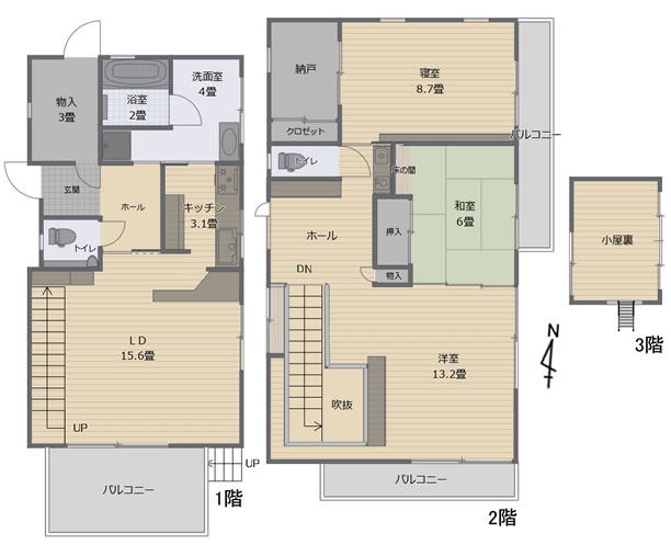
概要 | 土地の権利:所有権 地目:宅地・山林 鉄筋コンクリート・亜鉛メッキ鋼板葺3階建 1階53.83u 2階63.93u 3階7.24u 延 125.00u(37.81坪) 築年:平成11年11月 敷地の南側幅4mの未舗装公道に接している。 都市計画:非線引区域 無指定区域 建ぺい率:60% 容積率:200% 中部電力 公営水道 合併浄化槽 プロパン 御牧原の高台に位置するデザイナーズ住宅。 蓼科山を一望し、林間からは浅間山が見える。 |
| 物件種別 | 売家 | ||
| 価格 | 2,300万円 | ||
| 面積 | 1,318.32u(398.79坪) | ||
| 所在地 | 長野県小諸市山浦 | ||
| 交通 | 北陸新幹線 佐久平駅より9.2km | 備考 | 引き渡しは令和8年9月以降 |
| 周辺環境 | ・西友小諸小原店まで6.6km ・ローソン佐久蓬田店まで3.9km ・こやまクリニックまで4.2km ・小諸市役所まで6.8km ・南御牧郵便局まで4.3km ・あぐりの湯こもろまで5.4km ・千曲小学校まで4.8km ・芦原中学校まで8.1km |
||
![]() |
|
| 物件外観 |
|
![]() リビングダイニング |
![]() リビングダイニング |
![]() キッチン |
![]() 2階洋室 |
![]() 浴室 |
![]() 3階 |
![]() バルコニー |
![]() 住宅から見る蓼科山 |
![]() 南端から見る庭と建物 |
![]() 前面の未舗装公道 |
![]() |
|
![]() |
|
※掲載されている図面・データが現況と異なる場合は、現況を優先します。 |
|
![]() |
お問い合わせは 長野県佐久市望月99-3 TEL/FAX 0267-53-8456 |
Copyright (C) 2010 Sakulife Service All Rights Reserved.